Les Orres 1650
Vivre et grandir aux Orrianes
- PFE
En bref
Auteur
Orianne Gallot
Sous la direction de
Lieu
Les Orres (Hautes-Alpes)
Cursus pédagogiques
Présentation
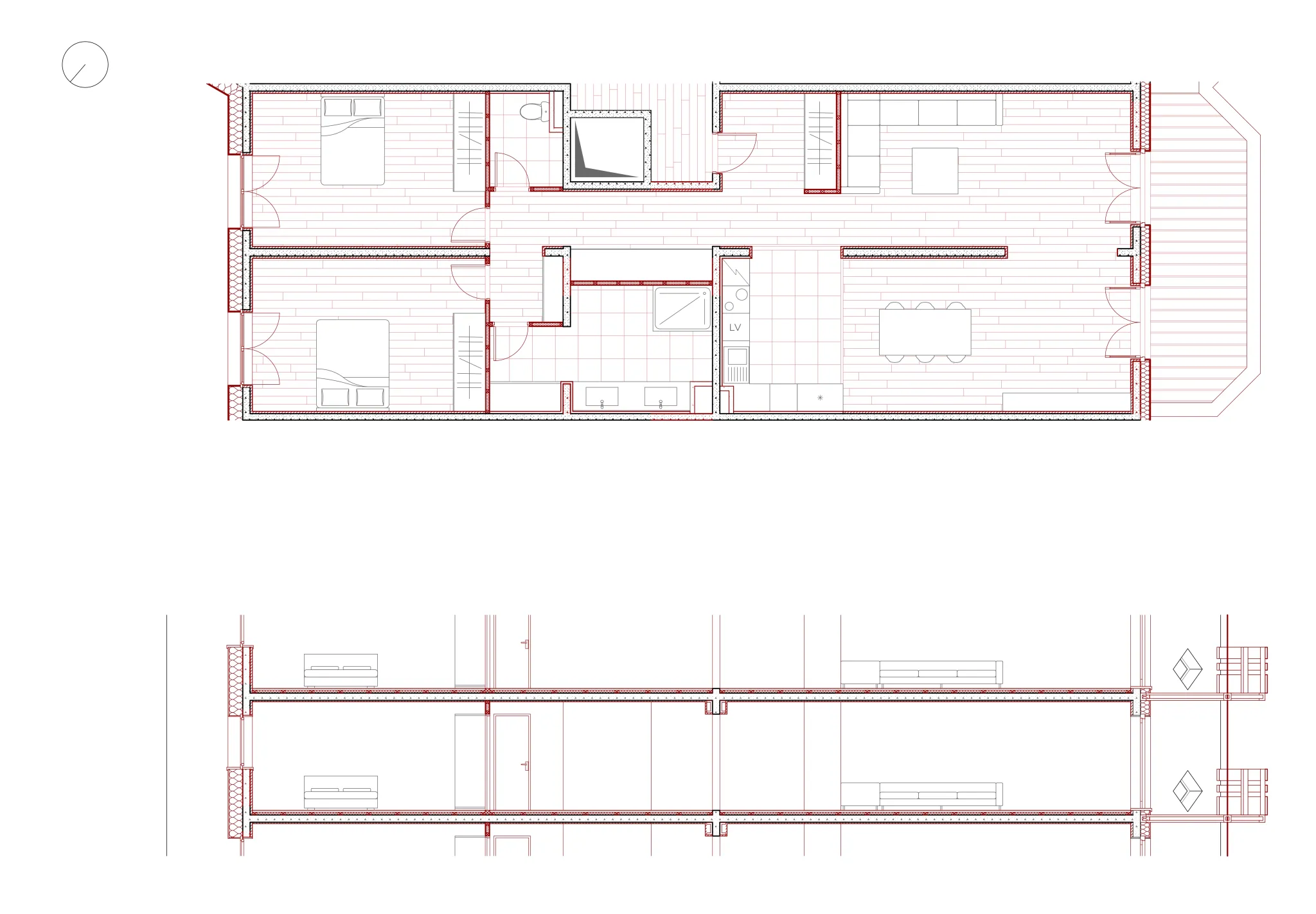
Face à la crise du logement et à la raréfaction du foncier, mon projet explore la réhabilitation du patrimoine bâti des stations de montagne du XXe siècle. Aux Orres 1650, station intégrée des Hautes-Alpes, j'interviens sur le bâtiment des Orrianes des Cimes et des Sources, aujourd'hui inadapté à un usage permanent. L'objectif est de transformer ce bâtiment pour en faire un lieu de vie à l'année et recréer une centralité active. Le rez-de-forum devient un espace commun avec accueil et atelier partagé, en liaison directe avec les parkings. Au niveau supérieur, un centre aéré s'installe en rez-de-rue : traversant, organisé autour d'un parvis et d'une cour plantée, il comprend des espaces de jeu, de travail, de restauration et une extension en bois de la partie sud. Les étages supérieurs sont restructurés en logements plus grands, mieux orientés, avec pièces de jour au sud, coworkings intégrés en R+1 et solarium commun. L'isolation est refaite par l'extérieur, les balcons reconstruits sur structure métallique, et les circulations repensées pour clarifier les usages. Ce projet propose une nouvelle lecture de ce patrimoine : un bâtiment transformé, à l'échelle du territoire, pour répondre aux usages contemporains et à la transition écologique en montagne.
Image /
Galerie d’images en plein écran
Utilisez les flèches gauche et droite pour naviguer entre les images. Appuyez sur Échap pour fermer la galerie d’images en plein écran.
Image sur : "