La bastide Guis
Refuge des soin longue durée
- PFE
En bref
Auteur
Mathieu Gomez
Sous la direction de
François Brugel
Lieu
Marseille, 13009
Cursus pédagogiques
Présentation
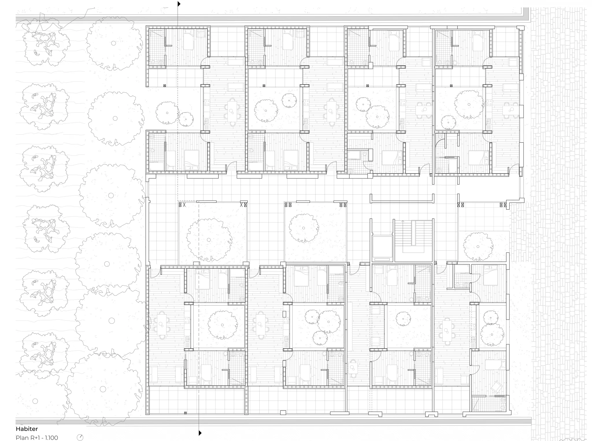
Traduction de la villégiature à Marseille, la bastide marseillaise autrefois très populaire est aujourd’hui un patrimoine rare, en voie de disparition. Dans le site hospitalier de Sainte-Marguerite, la demeure Guis avec son allée de platanes et ses pins centenaires semblent raconter l’héritage d’un ancien paysage bastidaire. Néanmoins ce dernier est en danger puisque un nouveau pôle de recherche devrait prendre racine sur ce même site. Le projet envisage ainsi de proposer un contre-projet, un retour à la lenteur où la réactivation d’un ensemble bastidaire devient facteur de soin. Symbole des notions du domicile et du quotidien, la bastide et sa réanimation s’adresse principalement aux malades en affections longue durée qui voit leur quotidien bouleversé, rythmé par la maladie. L’attention est donc portée d’une part à un patrimoine architectural symbole marseillais, et d'autre part à une population fragilisée, aux besoins d’espaces, de lieux et d’ambiance favorables à la guérison ou au mieux-être. Le projet s'appuie ainsi sur l'histoire et les éléments de la bastide, reconvoqués, transposés et adaptés pour répondre aux besoins des malades en affection longue durée. A l’échelle urbaine , paysagère et architecturale, ce refuge des soins longue durée se développe autour de trois notions, trois usages, organisés du plus public au plus intime et du plus éphémère au plus durable avec : Interagir; Se réfugier et Habiter.
Image /
Galerie d’images en plein écran
Utilisez les flèches gauche et droite pour naviguer entre les images. Appuyez sur Échap pour fermer la galerie d’images en plein écran.
Image sur : "